Building 1 – Unit 130 Unit 130 - 13160 Vanier Place, Richmond, BC
Property Details
Type
Office & Warehouse Status
For Lease Location
Building 1 - 13160 Vanier Pl
Sub Location
Building 1 - Ground Level
Space
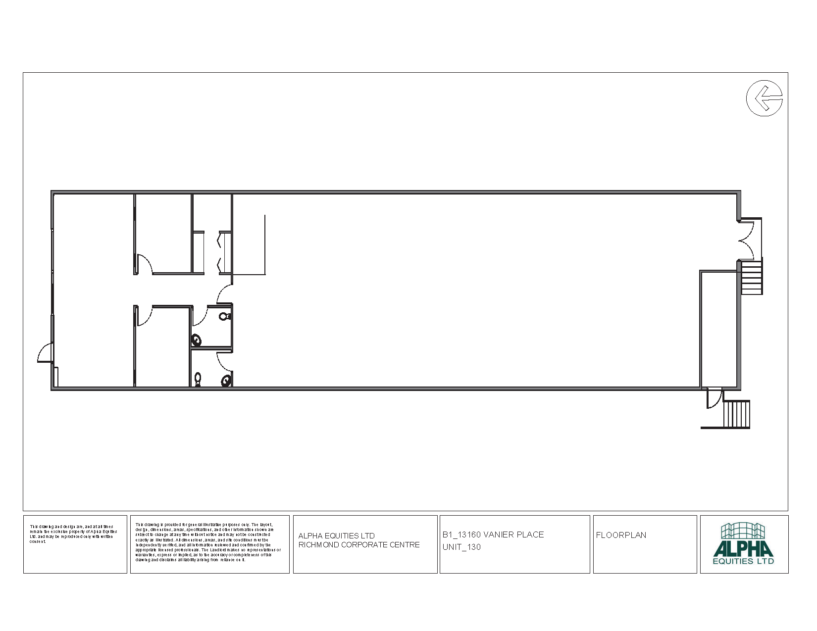
Area: 4,000 sq.ft.
LeaseRates Upon RequestLeaseAdditional Rent: $12.98 sf/yrOffices2
Property Description
This suite includes 3,000 square feet of quality warehouse/production/storage space with dock level loading and 1,000 square feet of office space including 2 built out offices, an open area, a kitchenette and 2 private washrooms.
Download Floor Plan
Property Features
Warehouse
Private Entrance
Ground Floor
Dock Loading
Kitchen
Private Washroom
Parking
Server Room













