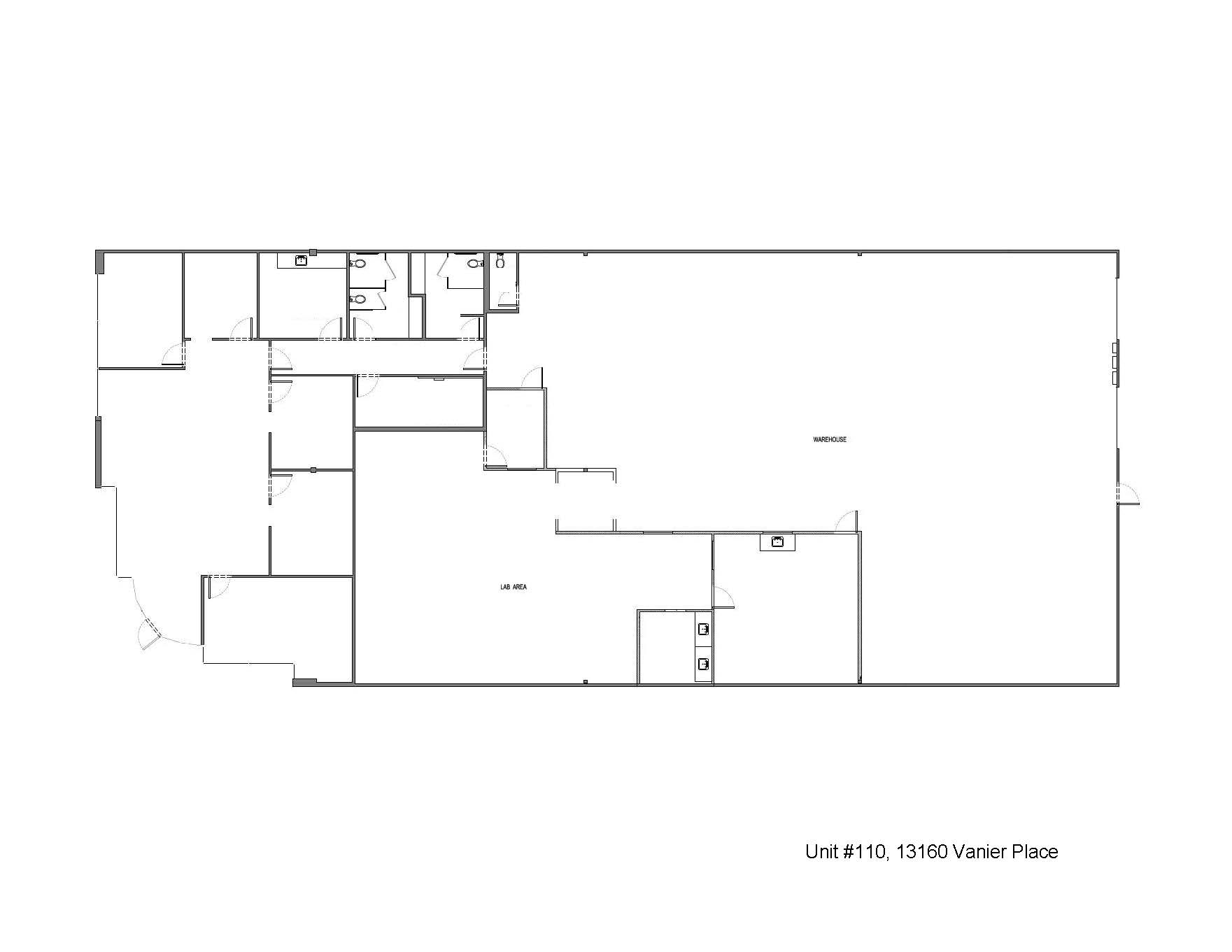
Building 1 – Unit 110 Unit 110 - 13160 Vanier Place
Property Details
Type
Office & Warehouse Status
For Lease Location
Building 1 - 13160 Vanier Pl
Sub Location
Building 1 - Ground Level
Space
Area: 8,616 sq.ft.
LeaseRates Upon RequestLeaseAdditional Rent: $12.98 sf/yrOffices5Meeting Rooms1
Property Description
Corner suite with about 6,000 square feet of lab/warehouse/production/storage space with a high ceiling and 2 loading bays (dock & grade), plus about 2,616 square feet of office space with ample glazing, a large high ceiling reception and open office space, 5 offices, lunchroom and 3 private washrooms.
Download Floor Plan
Property Features
100% Office
Warehouse
Private Entrance
Ground Floor
Dock Loading
Grade Loading
Kitchen
Private Washroom
Heated Warehouse
Parking
Reception Area
Meeting Room
Server Room
Office HVAC









