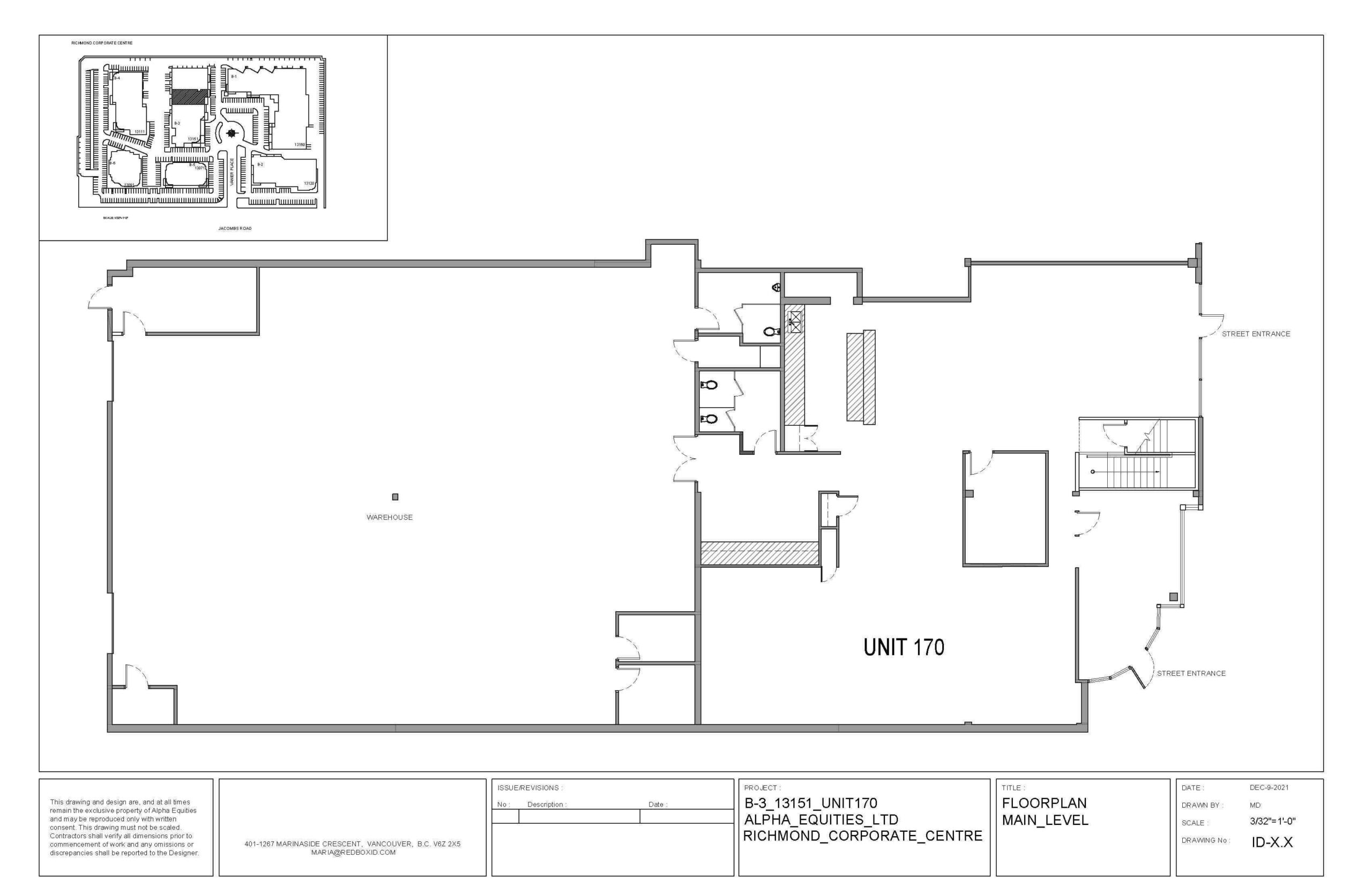
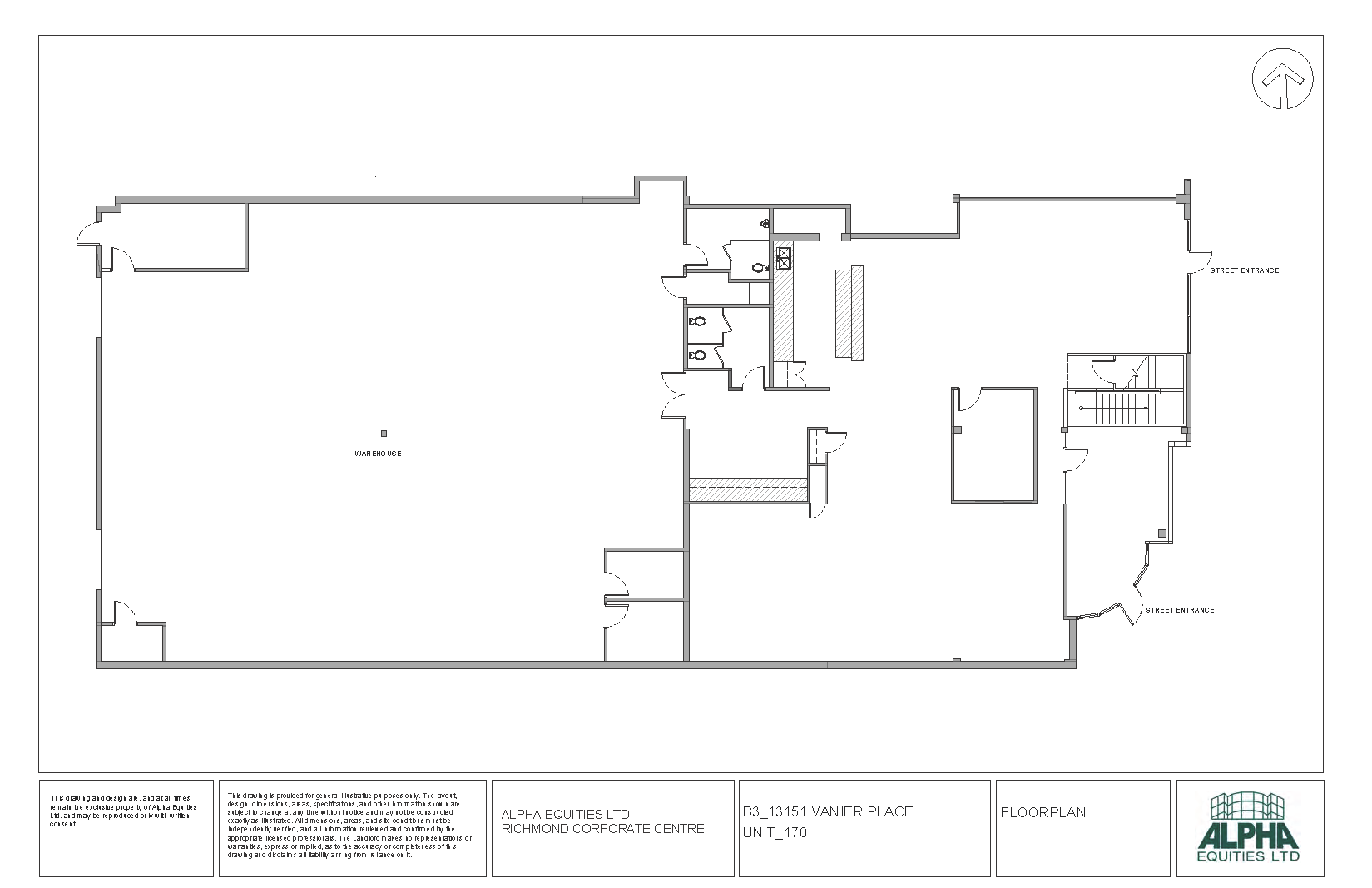
Building 3 – Unit 170 Unit 170 - 13151 Vanier Place
Property Details
Type
Office & Warehouse Status
For Lease Location
Building 3 - 13151 Vanier Pl
Sub Location
Building 3, Building 3 - Ground Level
Space
Area: 8,778 sq.ft.
LeaseRates Upon RequestLeaseAdditional Rent: $14.67 sf/yr
Property Description
This is approximately 8,778 square feet of combined office and warehouse space (Office: 4,045 sf/46%, Warehouse: 4,733sf /54%) include a reception area, open workspace, storage room, kitchen and 2 loading bays (1 dock level & 1 grade level).
Can be combined with Unit #260 for a total of approximately 14,413 square feet.
An existing opening to the common stairwell seamlessly connects Unit #170 to Unit #260, enabling direct and convenient access from the main floor to the second-floor office area. When combined, these suites offer a substantial and versatile office/warehouse solution suitable for a wide range of business needs.
Download Floor Plan
Property Features
100% Office
Warehouse
Private Entrance
Ground Floor
Shower
Dock Loading
Grade Loading
Kitchen
Private Washroom
Parking
Reception Area
Meeting Room
Server Room
Office HVAC



